/ Подієва площа UNIT.City
/ Подієва площа UNIT.City
/ Подієва площа UNIT.City
/ Подієва площа UNIT.City
/ Подієва площа UNIT.City
/ Подієва площа UNIT.City
/ Подієва площа UNIT.City
/ Подієва площа UNIT.City
/ Подієва площа UNIT.City
/ Подієва площа UNIT.City
/ Подієва площа UNIT.City
/ Подієва площа UNIT.City
/ Подієва площа UNIT.City
/ Подієва площа UNIT.City
/ Подієва площа UNIT.City
/ Подієва площа UNIT.City
/ Подієва площа UNIT.City
/ Подієва площа UNIT.City
/ Подієва площа UNIT.City
/ Подієва площа UNIT.City
/ Подієва площа UNIT.City
/ Подієва площа UNIT.City
/ Подієва площа UNIT.City

Подієва площа UNIT.City

Рік
2017-2021
Локація
Україна, Київ
Тип
Площа
1,3 га
Замовник
UDP
Підтримка
APA Wojciechowski Architekci
Співпраця
Бюро ініціативної архітектури GA (початковий етап 2017р.)
Статус
Реалізовано
Нагороди
LILA 2022 Winner in Campuses and Corporate Landscapes
Виклик
Створити центральну площу — серце 'UNIT.City', що буде затишною для повсякденного використання, і водночас матиме багато цілорічних сценаріїв використання. Сформувати інфраструктуру для щоденної роботи та відпочинку. Відобразити індустріальне минуле території та поєднати його характер з сучасними технологіями.
Рішення
Центральна площа — цілісна система, що поєднує в собі декілька різних по масштабу територій, може трансформуватися та підлаштовуватися під різні сценарії від ковзанки та спортивних подій та арт-інсталяцій. Створили поряд з площею простір з галявиною, аудиторіумом та щільно засадженим лісом. Він буде контрастним до інноваційного простору та створюватиме природну екосистему. Відобразили історично промисловий характер локації в сучасних елементах благоустрою.

Локація

Ділянка знаходиться в колишній промзоні між станціями метро «Дорогожичі» та «Лук'янівська» на території мотоциклетного заводу.

/ Подієва площа UNIT.City
/ Подієва площа UNIT.City

Якою має бути центральна площа інноваційного парку?

'Event Plaza' — другий крок до створення інноваційного парку 'UNIT.City'. В першій черзі було реалізовано територію IT-школи' UNIT.Factory' з кафе та спортивною зоною. 

Аерофотозйомка / Подієва площа UNIT.City
Поруч знаходиться ІТ-школа 'UNIT.Factory' / Подієва площа UNIT.City

Головна мета інноваційного 'UNIT.City' — створення новітньої, зручної платформи для залучення та розвитку ІТ-спільноти. Резиденти інноваційного парку зможуть вільно обмінюватись ідеями та втілювати у життя амбітні задуми. 

Загальна містобудівна концепція — 'APA Wojciechowski Architekci' / Подієва площа UNIT.City
Загальна містобудівна концепція — 'APA Wojciechowski Architekci'

Схема генерального плану

/ Подієва площа UNIT.City

Об'єкт буде проходити сертифікацію LEED, тож при проектуванні ми враховували норми зеленого будівництва та орієнтувалися на ефективне споживання ресурсів.

Етапність забудови

Будівництво планується в три етапи: 

  1. Ліс, аудиторіум та спортивний майданчик
  2. Частина площі
  3. Площа загалом
Перший етап / Подієва площа UNIT.City
Другий етап / Подієва площа UNIT.City
Третій етап / Подієва площа UNIT.City

Зв'язки

Ми врахували необхідні зв'язки на всіх стадіях реалізації проекту.

Рух легкових автомобілей / Подієва площа UNIT.City
Рух обслуговуючого транспорту / Подієва площа UNIT.City
Рух пожежного авто / Подієва площа UNIT.City
Рух пішоходів / Подієва площа UNIT.City

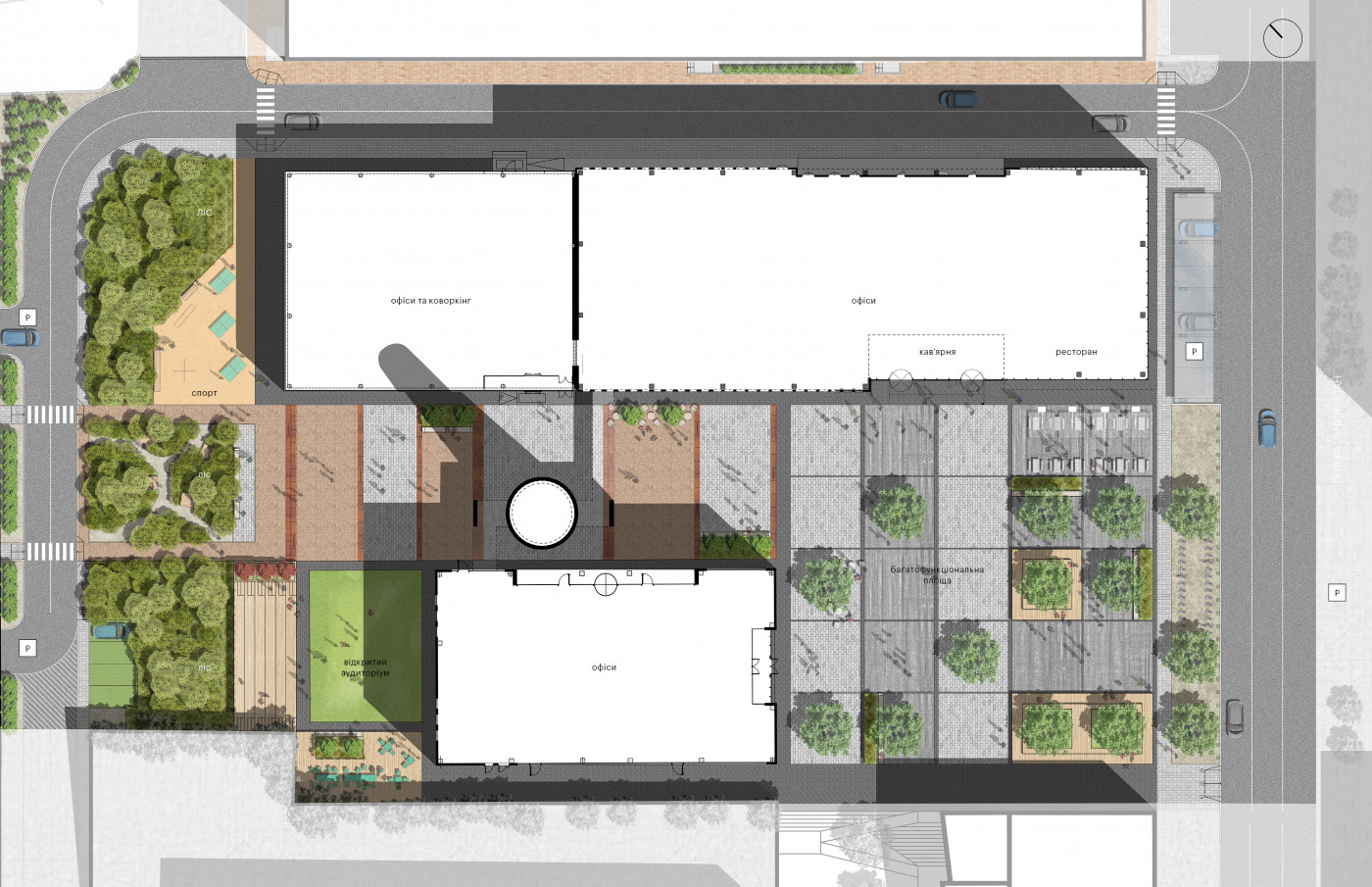
Концепція планування простору

Простір побудовано на контрасті відкритої порожньої площі та щільно насадженого рослинами лісу. Глибину лісу буде візуально продовжено за рахунок ефекту кривого дзеркала — обшитої листами із нержавіючої сталі підпірної стіни біля зеленої зони. 

/ Подієва площа UNIT.City

Формування парку

Ми підбирали стійкі рослини, що потребують мінімального догляду та створюють природну екосистему. 

/ Подієва площа UNIT.City
/ Подієва площа UNIT.City
Формування структури парку / Подієва площа UNIT.City
Формування структури парку / Подієва площа UNIT.City
Формування структури парку / Подієва площа UNIT.City
1 рік — посадка рослин / Подієва площа UNIT.City
2,5 роки — активний ріст / Подієва площа UNIT.City
4 роки — рослини набувають дорослої форми, починає формуватися екосистема / Подієва площа UNIT.City
Атмосфера лісу / Подієва площа UNIT.City
Обмін в екосистемі / Подієва площа UNIT.City
Обмін в екосистемі
Ліс у місті / Подієва площа UNIT.City
Ліс у місті

Відкритий аудиторіум

По різні боки від зеленої зони розташували майданчик для силових вправ та відкритий аудиторіум з великою галявиною й амфітеатром. 

Відкритий аудиторіум / Подієва площа UNIT.City
Відкритий аудиторіум
Відкритий аудиторіум / Подієва площа UNIT.City
Відкритий аудиторіум
Спортивний майданчик / Подієва площа UNIT.City
Спортивний майданчик

Історично-промисловий характер локації

Димова труба — ключовий символ індустріального минулого території. Для підсилення цієї ідеї використали мостіння з помаранчевої клінкерної цегли та вставки з кортенової сталі. В сучасних елементах благоустрою відобразили колишню локації — мотоциклетний завод. 

/ Подієва площа UNIT.City
/ Подієва площа UNIT.City
/ Подієва площа UNIT.City

Освітлення території

Освітлення центральної площі розміщене на щоглах, що мають прожектори для різних сценаріїв у вигляді проекцій. Одним із сценаріїв є проекція у вигляді спиць колеса мотоциклу «Дніпро», що виготовлявся на мотоциклетному заводі. 

Нічна площа та використання інтерактивного освітлення / Подієва площа UNIT.City
Нічна площа та використання інтерактивного освітлення

Сценарії використання площі

Для проведення заходів ми виділили три основні зони:

  • Відкритий аудиторіум
  • Частина площі (2 етап)
  • Площа загалом (3 етап)
Відкритий аудиторіум — різдвяні вистави / Подієва площа UNIT.City
Відкритий аудиторіум —  волейбол / Подієва площа UNIT.City
Відкритий аудиторіум — кіно та лекторій / Подієва площа UNIT.City
Площа на другому етапі будівництва — ковзанка / Подієва площа UNIT.City
Площа на другому етапі будівництва — міні-поле для гри в футбол / Подієва площа UNIT.City
Площа на другому етапі будівництва —  виставки / Подієва площа UNIT.City
Площа на третьому етапі будівництва — новорічні свята / Подієва площа UNIT.City
Площа на третьому етапі будівництва — концерти / Подієва площа UNIT.City
Площа на третьому етапі будівництва —  покази мод / Подієва площа UNIT.City
Центральна площа — серце інноваційного середовища 'Unit.City' / Подієва площа UNIT.City
Центральна площа — серце інноваційного середовища 'Unit.City'
Процес реалізації / Подієва площа UNIT.City
Процес реалізації
/ Подієва площа UNIT.City

Фото реалізації

/ Подієва площа UNIT.City
/ Подієва площа UNIT.City
/ Подієва площа UNIT.City
/ Подієва площа UNIT.City
/ Подієва площа UNIT.City
/ Подієва площа UNIT.City
/ Подієва площа UNIT.City
/ Подієва площа UNIT.City
/ Подієва площа UNIT.City
/ Подієва площа UNIT.City
/ Подієва площа UNIT.City
/ Подієва площа UNIT.City
/ Подієва площа UNIT.City
/ Подієва площа UNIT.City
/ Подієва площа UNIT.City
/ Подієва площа UNIT.City
/ Подієва площа UNIT.City
/ Подієва площа UNIT.City
/ Подієва площа UNIT.City
/ Подієва площа UNIT.City
/ Подієва площа UNIT.City

Студія ландшафтної архітектури 'KOTSIUBA'

Максим Коцюба, Марія Андрієнко, Маріанна Криворучко, Вікторія Качура, Анна Васильєва, Інна Добровольська

 

Бюро ініціативної архітектури 'GA'

Влодко Зотов

 

'UDP'

Віталій Мельник, Інна Міняйло, Михайло Раков

 

Фотограф

Марія Савоскула

Схожі проєкти
Інноваційний парк UNIT.CityІнноваційний парк UNIT.City
Кампуси та офіси Україна, Київ, Загальна площа 24 га, У процесі (поетапна реалізація)
Внутрішній двір офісу RoshenВнутрішній двір офісу Roshen
Кампуси та офіси Україна, Київ, 0,47 га, Реалізовано

Strategy + design — Other Land

Web development — Perevorot.com