/ UNIT.City Business Campus
/ UNIT.City Business Campus
/ UNIT.City Business Campus
/ UNIT.City Business Campus
/ UNIT.City Business Campus
/ UNIT.City Business Campus
/ UNIT.City Business Campus
/ UNIT.City Business Campus
/ UNIT.City Business Campus
/ UNIT.City Business Campus
/ UNIT.City Business Campus

UNIT.City Business Campus

Project Year(s)
2018-2019
Location
Ukraine, Kyiv
Size
0,43 ha
Client / Owner
'KAN Development'
Support
'Project Industry'
Partners & Collaborators
'UDP'
Status
Implemented
Challenge
To integrate architecture into the surrounding landscape and provide a link between this space and 'UNIT.Plaza'.
Solution
The properly selected materials for the porches have added uniformity to the overall look. The vegetation from the 2nd construction stage has been incorporated into the new design.

Location

The site is located on what was previously a Motorcycle Factory.

/ Територія академії DTEK 'UNIT.City'

The third step of 'UNIT.City' implementation

Даний проект — третя черга реалізації інноваційного парку. Детальніше про проекти першої та другої черги за посиланням. 

/ Територія академії DTEK 'UNIT.City'

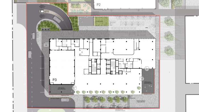
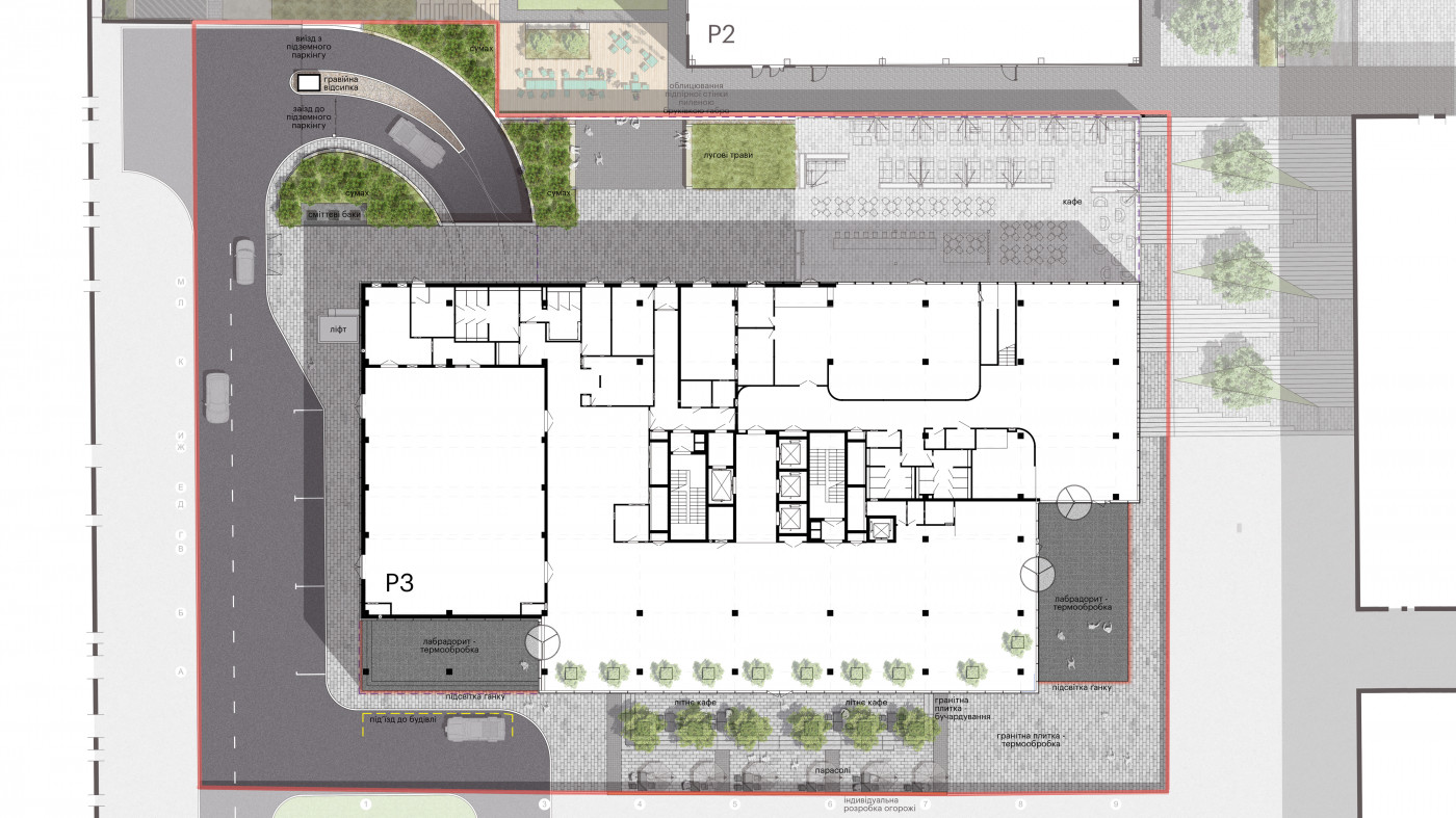
Master Plan

Academy's site is the beginning of the third construction stage, which consists of a park and many campuses. Now it is separated from the construction by a temporary fence. Therefore, when designing, we considered the further development of the site, so that it was perceived holistically and did not require unnecessary dismantling. The building's main entrance is pedestrian, and the side entrance has car access. Under the building is underground parking.

/ Територія академії DTEK 'UNIT.City'

Porches

We used dark stones for the pavement to unite with the facades' color tone. A red lighting stripe underlines porches.  

/ Територія академії DTEK 'UNIT.City'
/ Територія академії DTEK 'UNIT.City'

Porches' pavement pattern

Pavement pattern repeates pattern of the facades in the smaller scale in order to create a holistic perception of porches together with building.

/ Територія академії DTEK 'UNIT.City'
/ Територія академії DTEK 'UNIT.City'

Connection with the second construction stage of 'UNIT.City'

/ Територія академії DTEK 'UNIT.City'
/ Територія академії DTEK 'UNIT.City'
/ Територія академії DTEK 'UNIT.City'
/ Територія академії DTEK 'UNIT.City'

Summer cafe

There is access to the lobby and cafe from the terrace that locates between two entrances of the building. It will serve as a place for meetings and leisure.

/ Територія академії DTEK 'UNIT.City'
/ Територія академії DTEK 'UNIT.City'
/ Територія академії DTEK 'UNIT.City'
/ Територія академії DTEK 'UNIT.City'
/ Територія академії DTEK 'UNIT.City'
/ Територія академії DTEK 'UNIT.City'
/ Територія академії DTEK 'UNIT.City'
/ Територія академії DTEK 'UNIT.City'
/ Територія академії DTEK 'UNIT.City'
/ Територія академії DTEK 'UNIT.City'
/ Територія академії DTEK 'UNIT.City'
/ Територія академії DTEK 'UNIT.City'

Landscape architecture studio 'KOTSIUBA'

Maksym Kotsiuba, Mariia Andriienko, Marianna Kryvoruchko, Victoriia Kachura, Anna Vasylieva, Inna Dobrovolska, Andrii Kunitskii

 

'KAN Development'

Anastasia Mohyla, Oleksandr Levchuk

 

'Project Industry'

Sergii Franchuk

Strategy + design — Other Land

Web development — Perevorot.com