/ Територія академії DTEK 'UNIT.City'
/ Територія академії DTEK 'UNIT.City'
/ Територія академії DTEK 'UNIT.City'
/ Територія академії DTEK 'UNIT.City'
/ Територія академії DTEK 'UNIT.City'
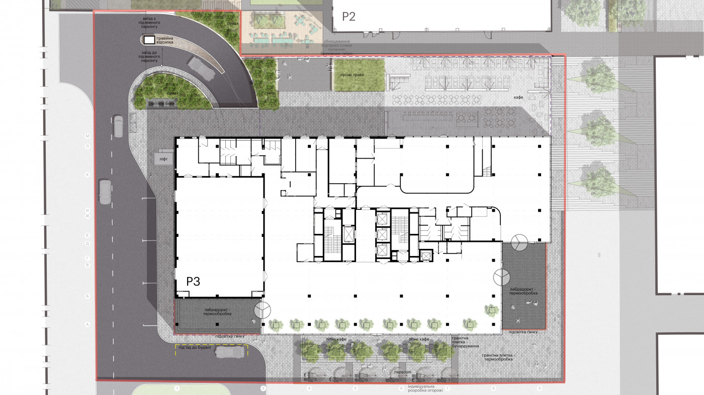
Генеральний план / Територія академії DTEK 'UNIT.City'
Центральний вхід / Територія академії DTEK 'UNIT.City'
Ґанок з літнім кафе / Територія академії DTEK 'UNIT.City'
Вхід з автомобільним під'їздом / Територія академії DTEK 'UNIT.City'
Внутрішній двір / Територія академії DTEK 'UNIT.City'
Заїзд до підземного паркінгу / Територія академії DTEK 'UNIT.City'

Територія академії DTEK 'UNIT.City'

Рік
2018-2019
Локація
Україна, Київ
Площа
0,43 га
Замовник
'KAN Development'
Підтримка
'Project Industry'
Співпраця
'UDP'
Статус
Реалізовано
Виклик
Забезпечити взаємозв'язок із другою чергою — 'UNIT.Plaza' та архітектурою будівлі бізнес-кампусу.
Рішення
Ґанки візуально включені до загального об'єму будівлі за рахунок темного каменю, наближеного за тоном до фасадів. Продовжена зона зелених насаджень з другої черги будівництва 'UNIT.City'.

Локація

Ділянка знаходиться в колишній промзоні між станціями метро «Дорогожичі» та «Лук'янівська» на території колишнього заводу. 

/ Територія академії DTEK 'UNIT.City'

Третій крок реалізації 'UNIT.City'

Даний проект — третя черга реалізації інноваційного парку. Детальніше про проекти першої та другої черги за посиланням. 

Містобудівна концепція 'APA Wojciechowski Architekci' / Територія академії DTEK 'UNIT.City'
Містобудівна концепція 'APA Wojciechowski Architekci'

Генеральний план

Територія академії — це початок будівництва третьої черги, яка складається з парку та багатьох кампусів. Зараз вона відділена від будівництва тимчасовою огорожею. Тому при проектуванні ми зважали на подальший розвиток території, щоби вона сприймалася цілісно і не потребувала зайвого демонтажу. 

Головний вхід будівлі організовано пішохідним, а з іншого боку є можливість під’їзду на авто. Під будівлею розташований підземний паркінг. 

/ Територія академії DTEK 'UNIT.City'

Ґанки

Щоб контур мостіння не розбивав цілісність будівлі, візуально включаємо ґанки до неї за рахунок облицювання темним каменем, що має наближений до фасадів тон. 

До / Територія академії DTEK 'UNIT.City'
Після / Територія академії DTEK 'UNIT.City'

Схема розкладки плитки на ґанку

Малюнком мостіння повторили в зменшеному масштабі розкладку фасаду будівлі для більш цілісного сприйняття ґанків з будівлею.

Центральний вхід / Територія академії DTEK 'UNIT.City'
Центральний вхід
Вхід з автомобільним під'їздом / Територія академії DTEK 'UNIT.City'
Вхід з автомобільним під'їздом

Зв'язок з другою чергою будівництва 'UNIT.City'

Поряд з ділянкою будівлі знаходиться друга черга будівництва 'UNIT.City' де запроектовано лісову зону зі щільними зеленими насадженнями кельрейтерії, горобини та софори / Територія академії DTEK 'UNIT.City'
Для забезпечення цілісності сприйняття території продовжуємо зону зелених насаджень з використанням сумаху оленерогого / Територія академії DTEK 'UNIT.City'
Заїзд до підземного паркінгу / Територія академії DTEK 'UNIT.City'
Заїзд до підземного паркінгу
Оглядовий майданчик з зоною відпочинку / Територія академії DTEK 'UNIT.City'
Оглядовий майданчик з зоною відпочинку

Ґанок з літнім кафе

З майданчика, що знаходиться між двома входами до будівлі, є доступ до вестибюлю та кафе. Він слугуватиме місцем для зустрічей та відпочинку.

Особливості організації пожежного проїзду вимагали підбір дерев не вище 5,5 метрів для безпечної евакуації людей з нижніх поверхів / Територія академії DTEK 'UNIT.City'
Навпроти входу влаштовуємо майданчик кафе для теплої пори року, затінок білої шовковиці з формою крони «дах» буде добре захищати відвідувачів від сонця і не перевищить висоти 5,5 метрів / Територія академії DTEK 'UNIT.City'
/ Територія академії DTEK 'UNIT.City'
/ Територія академії DTEK 'UNIT.City'
/ Територія академії DTEK 'UNIT.City'
/ Територія академії DTEK 'UNIT.City'
/ Територія академії DTEK 'UNIT.City'
/ Територія академії DTEK 'UNIT.City'
/ Територія академії DTEK 'UNIT.City'
/ Територія академії DTEK 'UNIT.City'
/ Територія академії DTEK 'UNIT.City'
/ Територія академії DTEK 'UNIT.City'

Студія ландшафтної архітектури 'KOTSIUBA'

Максим Коцюба, Марія Андрієнко, Маріанна Криворучко, Вікторія Качура, Анна Васильєва, Інна Добровольська, Андрій Куніцький

 

'KAN Development'

Анастасія Могила, Олександр Левчук

 

'Project Industry'

Сергій Франчук

 

Фотограф

Марія Савоскула

Strategy + design — Other Land

Web development — Perevorot.com