/ Центр розвитку дитини 'Rybalsky family port' та двір №5
/ Центр розвитку дитини 'Rybalsky family port' та двір №5
/ Центр розвитку дитини 'Rybalsky family port' та двір №5
/ Центр розвитку дитини 'Rybalsky family port' та двір №5
/ Центр розвитку дитини 'Rybalsky family port' та двір №5
/ Центр розвитку дитини 'Rybalsky family port' та двір №5
/ Центр розвитку дитини 'Rybalsky family port' та двір №5
/ Центр розвитку дитини 'Rybalsky family port' та двір №5
/ Центр розвитку дитини 'Rybalsky family port' та двір №5
/ Центр розвитку дитини 'Rybalsky family port' та двір №5
/ Центр розвитку дитини 'Rybalsky family port' та двір №5
/ Центр розвитку дитини 'Rybalsky family port' та двір №5

Центр розвитку дитини 'Rybalsky family port' та двір №5

Рік
2021 —,
Локація
Україна, Київ
Тип
Площа
0,4 га
Замовник
SAGA Development
Підтримка
Архітектурне бюро 'BURØ'
Статус
У процесі реалізації
Завдання
Спроектувати внутрішній двір будинку №5 та територію дитячого садочка і школи, що входить до нього.
Виклик
Створити активний простір навчального закладу у якому дітям буде цікаво гратися. Поєднати його з подвір'ям житлового будинку враховуючи потреби мешканців.
Рішення
Розподілили простір за функціями подвір'я та дитсадка і поєднали його спільною зеленою зоною, що одночасно слугує буфером. Ядра активності розмістили на протилежних сторонах подвір'я. Так ми збалансували простір та вирішили конфлікт сусідства активного простору з подвір'ям. В основу концепції території дитячого садка заклали ідею взаємодії та дослідження світу через природу. Територія для спортивних ігор для школярів розмістилася на даху школи.

Локація

Житловий район Rybalsky розміщений у Подільському районі Києві — на Рибальському півострові. 

Квартальна забудова району полягає в розділенні житлових кварталів сіткою вулиць на невеликі сектори із внутрішніми дворами, які доступні тільки для мешканців та їх гостей.

/ Центр розвитку дитини 'Rybalsky family port' та двір №5

Двір розміщений на бетонній плиті перекриття паркінгу, на рівні другого поверху. Половину подвір'я займає територія центру розвитку дитини (ЦРД), інша половина — для мешканців будинку №5.

Простір для школярів знаходиться на даху школи.

Процес будівництва будинку №5 на момент старту нашої роботи у 2021 / Центр розвитку дитини 'Rybalsky family port' та двір №5
Процес будівництва будинку №5 на момент старту нашої роботи у 2021

Формування планувальної структури двору

Подвір'я умовно поділили на дві частини, що розмежовують територію за функціями на двір та дитсадок. Так ми вирішуємо конфлікт функцій. Ядра активності розміщені на протилежних сторонах подвір'я, щоб збалансувати простір та винести галасливі ігри подалі від вікон житла.

/ Центр розвитку дитини 'Rybalsky family port' та двір №5
Спочатку розподілення просторів по діагоналі лягло в основу планувального рішення / Центр розвитку дитини 'Rybalsky family port' та двір №5
/ Центр розвитку дитини 'Rybalsky family port' та двір №5
З деталізацією стали зрозумілі слабкі сторони даного планувального рішення / Центр розвитку дитини 'Rybalsky family port' та двір №5
Діагональне розподілення просторів заважало корисно задіяти весь простір подвір'я / Центр розвитку дитини 'Rybalsky family port' та двір №5
І пошук планувального рішення продовжився далі / Центр розвитку дитини 'Rybalsky family port' та двір №5
/ Центр розвитку дитини 'Rybalsky family port' та двір №5
/ Центр розвитку дитини 'Rybalsky family port' та двір №5
В результаті знайшли потрібне поєднання просторів / Центр розвитку дитини 'Rybalsky family port' та двір №5
Що враховує вихідні умови і інтереси всіх користувачів / Центр розвитку дитини 'Rybalsky family port' та двір №5
Простір збалансований по функціям та наповненню / Центр розвитку дитини 'Rybalsky family port' та двір №5
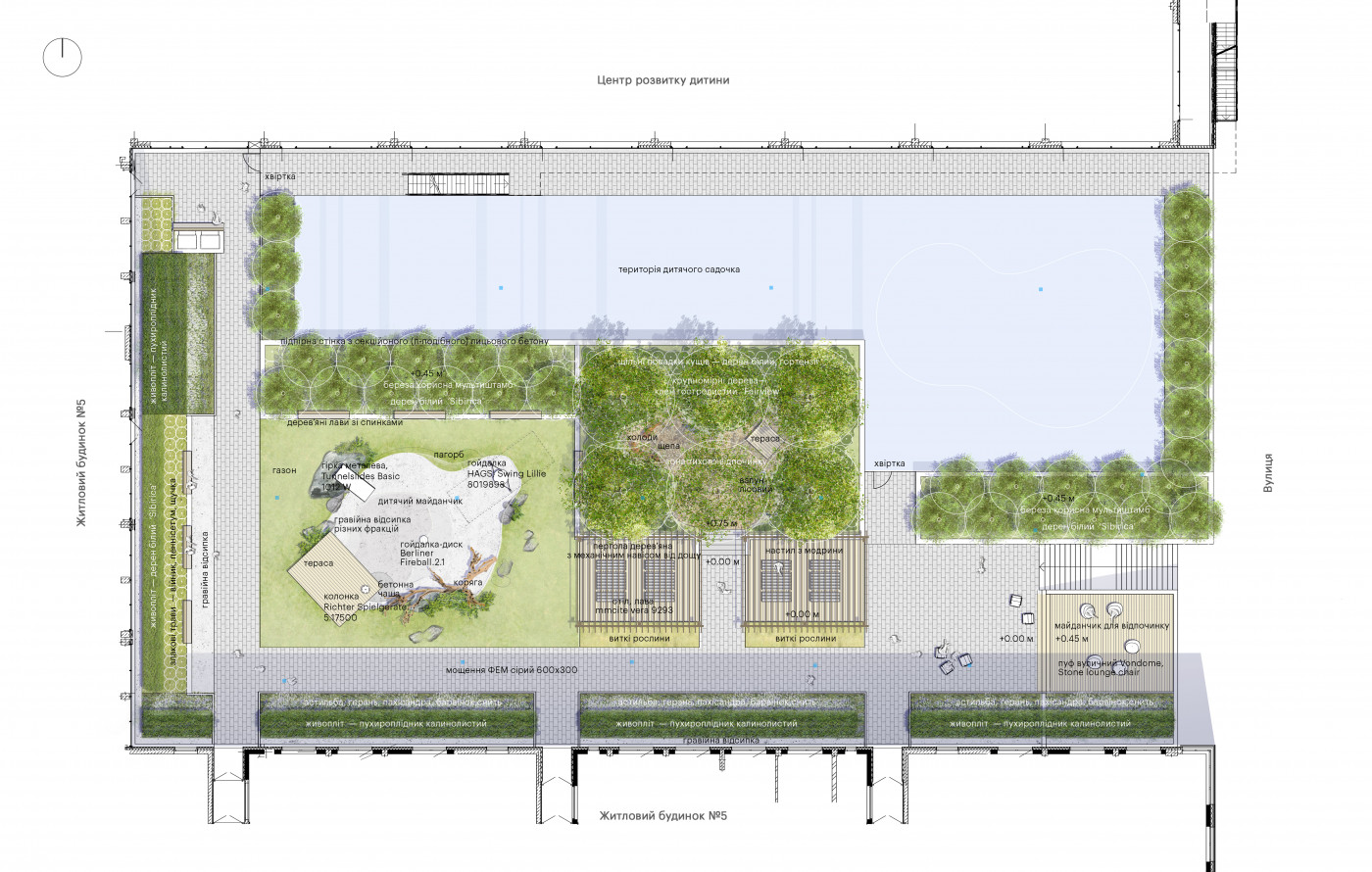
Ескізний пошук

Двір

Подвір'я та територія дитсадка пов'язані планувально: зони розміщені дзеркально одна одній та мають однакову ширину. Їх розмежовують щільні зелені насадження, що висаджені в припіднятих клумбах. Дерева та кущі утворюють живу огорожу та знижують рівень шуму з дитячого садка. 

/ Центр розвитку дитини 'Rybalsky family port' та двір №5

У центрі внутрішнього подвір'я — зона тихого відпочинку у вигляді двох пергол зі столиками та тихої зеленої зони, що візуально розподіляє територію завдяки щільній посадці крупномірних дерев.

Це об'ємно-просторове та соціальне ядро простору. За столиками мешканці можуть збиратися разом, грати у настільні ігри, спілкуватися, тут зручно перекусити з дітьми після гри на майданчику, почитати книгу та навіть розслабитися вечором за келихом вина. Це сприяє розвитку добросусідських відносин.

Пергола / Центр розвитку дитини 'Rybalsky family port' та двір №5
Пергола

Під час презентації концепції майбутнім мешканцям, ми отримали пропозицію зробити терасу в зеленій зоні з крупномірними деревами. Так з'явилася зона тихого відпочинку — зелений простір, в якому приємно побути серед природи та сховатися від літньої спеки у затінку дерев.

Ділянка припіднята на 0,75 м над землею, щоб дерева мали достатньо простору для росту. 


Зона тихого відпочинку / Центр розвитку дитини 'Rybalsky family port' та двір №5
Зона тихого відпочинку

На великій галявині поруч із зоною для відпочинку — ігровий майданчик для дітей до 6 років. Відкритий простір дає дітям можливість вільно бігати та гратися.

Ми вирішили зробити майданчик максимально наближеним до природи. Створили рельєф, припіднявши газон та сформували впадину з гравію у вигляді висохлого озера, додали ігрові елементи, валуни та коряги. Важлими елементом є колонка для гри з водою. 


Дитячий майданчик / Центр розвитку дитини 'Rybalsky family port' та двір №5
Дитячий майданчик
/ Центр розвитку дитини 'Rybalsky family port' та двір №5

Біля сходів зі сторони вулиці сформували майданчик для відпочинку з пуфами. Це простір для вільного використання за потребами мешканців. Він має безліч сценаріїв: від тихого читання з чашкою кави до гучних вечірок усім двором.

/ Центр розвитку дитини 'Rybalsky family port' та двір №5

Територія дитячого садочка

У основі концепції простору дитячого садочка — ідея взаємодії та дослідження світу через природу.

Розширення зеленої зони / Центр розвитку дитини 'Rybalsky family port' та двір №5
Основний та додатковий маршрути / Центр розвитку дитини 'Rybalsky family port' та двір №5
Рельєф / Центр розвитку дитини 'Rybalsky family port' та двір №5
Атмосфери просторів / Центр розвитку дитини 'Rybalsky family port' та двір №5
Концепція влаштування простору
Генплан / Центр розвитку дитини 'Rybalsky family port' та двір №5
Генплан

Подовжуємо зелені насадження зі сторони двору, формуючи тихий простір ближче вікон житлових будинків. Простір для активних ігор розташовуємо ближче до вулиці, щоб не створювати шумовий дискомфорт мешканцям.

Прокладаємо доріжки з різними маршрутами та покриттями через зелені насадження. Додаємо рельєф: він підсилює цікавість маршрутів та формує співмасштабний простір для дитини. Додатковий насип грунту дає змогу висадити кущі та дерева, без необхідності виконувати припідняті клумби з бетону.

Планування дає змогу помістити в невеличкий простір цілий загадковий світ, який буде щодня цікаво досліджувати та відкривати по-новому. Сформували такі тематичні та функційні зони: вілький простір океану, кам'яні печери, загублений ліс, берег річки та поселення первісних людей. 

/ Центр розвитку дитини 'Rybalsky family port' та двір №5

Територія розпочинається зоною вільного простору – океаном. Це найгаласливіша ділянка майданчика, тож ми розмістили її ближче до вулиці й подалі від вікон житлових будинків. У цьому місці діти виходять із садочка та розбігаються по території. 

Біля входу розміщена маркіза для занять на свіжому повітрі. Вздовж будівлі сформували буферний простір — широкий тротуар, з якого можна потрапити до кожної зони майданчика.

У зоні океану сконцентрована більшість ігрових та спортивних активностей. Ігрові елементи виконані у формі риболовних та корабельних сіток. Гумове покриття має свій візерунок та умовно зонує простір на океан та сушу. 

Ігровий майданчик 'Океан' / Центр розвитку дитини 'Rybalsky family port' та двір №5
Ігровий майданчик 'Океан'

Після океану розкривається простір дощового лісу. У зелену зону ми інтегрували дитячий майданчик, що дає можливість дітям відчути себе маленькими дослідниками. Щоб потрапити до нього, потрібно пройти крізь печери з наскельними малюнками. Тут є дошка для малювання, де кожен може залишити свої відмітки.

Печери та наскельні малюнки / Центр розвитку дитини 'Rybalsky family port' та двір №5
Печери та наскельні малюнки

Діти можуть обрати декілька маршрутів для дослідження та гри. Основний маршрут охоплює усі ігрові зони та активності. Він вистелений стабілізованим гравієм та не відволікає від ігрових елементів. Додатковий маршрут також проходить крізь усі зони, проте має відгалуження до більш тихих місцин з корягами, дерев'яними фігурами рептилій, камінням. Ця доріжка з гальки має рельєф, що підсилює цікавість його проходження. Третій маршрут — можливість потрапити у будь-яку зону зі сторони тротуару. 

Після печер потрапляємо у зону лісу. Тут можна взаємодіяти з корягами та колодами, бігати серед дерев та кущів. Простір співмасштабний росту дитини: колоди сприймаються як стовбури дорослих дерев.

Печери та наскельні малюнки / Центр розвитку дитини 'Rybalsky family port' та двір №5
Печери та наскельні малюнки
Загублений ліс / Центр розвитку дитини 'Rybalsky family port' та двір №5
Загублений ліс

Із лісу виходимо на берег «річки». У цій зоні розміщені природні дерев'яні ігрові елементи: човен, крокодил-лава, гойдалка.

Завдяки різноманітності маршрутів та сценаріїв для гри, простір не набридає. Його кожного разу можна відкривати по-новому, вигадувати нові історії. 

На березі річки / Центр розвитку дитини 'Rybalsky family port' та двір №5
На березі річки

У кінці маршруту стоїть поселення первісних людей. Можна ховатися в альтанках, сплетених із верби. Покинуте кострище увечері оживає: з'являється підсвітка, що імітує жевріння. Увесь простір запрошує до гри та пробуджує фантазію.

Поселення первісних людей / Центр розвитку дитини 'Rybalsky family port' та двір №5
Поселення первісних людей
Генплан ЦРД та розріз / Центр розвитку дитини 'Rybalsky family port' та двір №5
Генплан ЦРД та розріз

Центральний вхід до будівлі ЦРД розміщений зі сторони спортивної зони пішохідного бульвару Rybalsky. Простір розрахований на підлітків: тут є скейт-парк, батути, місце для активних ігор.

Школа межує з пішохідним бульваром Rybalsky / Центр розвитку дитини 'Rybalsky family port' та двір №5
Школа межує з пішохідним бульваром Rybalsky

Територія школи на даху

На майданчику школи продовжуємо концепцію дослідження. Тематика цього простору — колонізація Марсу.

Ескіз / Центр розвитку дитини 'Rybalsky family port' та двір №5
Ескіз

На даху є майданчики для спортивних ігор: поля для баскетболу та мініфутболу. Поруч розмістили перголу та трибуни, щоб зручно було спостерігати за матчами. Ігрові елементи мають форму зірок та зорельотів. На ділянці для мініфутболу нанесли розмітку злітної смуги для літаків. 

Теплиця та городи розміщені в кратерах "марсіанської породи" дають простір для дослідження рослин. Тут діти будуть вирощувати огірки, помідори, капусту, картоплю та інші овочі.

/ Центр розвитку дитини 'Rybalsky family port' та двір №5

Процес реалізації

/ Центр розвитку дитини 'Rybalsky family port' та двір №5
/ Центр розвитку дитини 'Rybalsky family port' та двір №5
/ Центр розвитку дитини 'Rybalsky family port' та двір №5

Студія ландшафтної архітектури 'KOTSIUBA'

Максим Коцюба, Марія Андрієнко, Світлана Конопльова, Олександр Прохоров

Схожі проєкти

Strategy + design — Other Land

Web development — Perevorot.com