/ Новопечерська школа
/ Новопечерська школа
/ Новопечерська школа
/ Новопечерська школа
/ Новопечерська школа
/ Новопечерська школа
/ Новопечерська школа
/ Новопечерська школа
/ Новопечерська школа
/ Новопечерська школа
/ Новопечерська школа
/ Новопечерська школа
/ Новопечерська школа

Новопечерська школа

Рік
2013-2014
Локація
Україна, Київ
Тип
Площа
1,6 га
Замовник
'UDP'
Підтримка
Громадська спілка «Освіторія»
Статус
Реалізовано
Завдання
Створити багатофункціональний шкільний простір, який поєднує навчання, гру, взаємодію з природою та фізичну активність. Забезпечити комфортне, безпечне та сучасне середовище для учнів у щільній міській забудові.
Виклик
Обмежена територія школи вимагала чіткого зонування, щоб поєднати простір для навчання, відпочинку та спорту. Важливо було зробити природу доступною для дітей, інтегрувати її в освітній процес і водночас створити простір, який не буде перевантажений елементами.
Рішення
Простір школи спроєктовано так, щоб стимулювати дослідження, гру та взаємодію дітей із природою. Ландшафт став продовженням освітнього процесу: тут можна вчитися просто неба, вигадувати власні сценарії ігор, спілкуватися та відпочивати. Природа інтегрована у повсякденне життя учнів через зелені насадження, ігрові майданчики та адаптивні простори, які можна використовувати по-різному. Завдяки цьому територія школи є не просто місцем між уроками, а середовищем, що надихає та розвиває.

Локація

Новопечерська школа — приватна школа повного дня, розрахована на 450 учнів і розташована в Печерському районі Києва в житловому комплексі «Новопечерські липки».

/ Новопечерська школа

До початку роботи

Залучення нашої студії на етапі будівництва дало змогу вплинути на ключові просторові рішення та забезпечити гармонійну інтеграцію ландшафту в загальну концепцію школи. У процесі роботи ми повністю змінили конфігурацію ганку центрального входу, спростили сходи, оптимізували площу перед будівлею та створили затишну обідню зону з озелененням для школярів. Це дозволило не лише покращити функціональність простору, а й зробити його більш комфортним для навчання, відпочинку та взаємодії.  

Попередня проектна пропозиція / Новопечерська школа
/ Новопечерська школа
Попередня проектна пропозиція / Новопечерська школа
Попередня проектна пропозиція / Новопечерська школа
Попередня проектна пропозиція / Новопечерська школа

Контекст

Навколо школи доволі щільна висотна забудова, тому однією з наших основних задач було відтворення справжньої природи в місті.

Фотофіксація / Новопечерська школа
Фотофіксація / Новопечерська школа
Фотофіксація / Новопечерська школа

Ескізний пошук

Основна ідея проєкту – створити не просто шкільний двір, а динамічне середовище, яке розширює можливості навчання, гри та взаємодії. Ми прагнули зробити простір відкритим до різних сценаріїв використання, де дитина сама визначає, як ним користуватися. Важливим принципом стало поєднання природи та архітектури, де ландшафт не виступає лише фоном, а стає активним елементом освітнього процесу та щоденного життя учнів.  

/ Новопечерська школа
/ Новопечерська школа
/ Новопечерська школа
/ Новопечерська школа

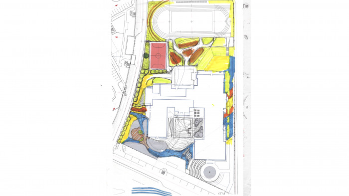
Генеральний план

Новопечерська школа – проєкт ГО «Освіторія», що поєднує українську освітню програму з найкращими світовими практиками. Інноваційним є не лише підхід до навчання, а й сам простір школи, який підтримує розвиток, спілкування та гру.

Ландшафтне середовище інтегроване в освітній процес і пропонує різні сценарії використання:
– Центральна площа для шкільних заходів та урочистостей,
– Зелені тераси по обидва боки будівлі, що формують затишний внутрішній простір,
– Територія для молодших учнів з інтегрованими ігровими елементами,
– Спортивна та ігрова зони,
– Амфітеатр «Зоряне небо», який слугує місцем для навчання та відпочинку.

/ Новопечерська школа

Вхідна група та центральна площа

Простір перед школою залишився максимально відкритим, забезпечуючи гнучкість використання. Площа передбачає проведення шкільних свят, лінійок та зібрань, а її мощення візуально об’єднує територію, створюючи відчуття цілісності. Для захисту від дороги використано пагорби, що формують природний бар’єр, зменшують рівень шуму та створюють ефект простору, оповитого природою.

Площа / Новопечерська школа
Площа / Новопечерська школа
Площа / Новопечерська школа
Площа / Новопечерська школа
Спільно з архітекторами розробили вхідну групу школи та стелу / Новопечерська школа
Спільно з архітекторами розробили вхідну групу школи та стелу / Новопечерська школа
Спільно з архітекторами розробили вхідну групу школи та стелу / Новопечерська школа
Зона відпочинку зі столиками відокремлена від площі багаторічниками / Новопечерська школа
Зона відпочинку зі столиками відокремлена від площі багаторічниками / Новопечерська школа
Зона відпочинку зі столиками відокремлена від площі багаторічниками / Новопечерська школа
Зона відпочинку зі столиками відокремлена від площі багаторічниками / Новопечерська школа
Зона відпочинку зі столиками відокремлена від площі багаторічниками / Новопечерська школа
Зона відпочинку зі столиками відокремлена від площі багаторічниками / Новопечерська школа
Зона відпочинку зі столиками відокремлена від площі багаторічниками / Новопечерська школа

Майданчик для дошкільнят

Замість стандартних мобільних лав ми використали бетонні конструкції з дерев'яними сидіннями, які органічно інтегровані в ландшафт. Вони довговічні, стійкі до навантажень і забезпечують комфортні місця для відпочинку, водночас природно вписуючись у середовище та дозволяючи розмістити більшу кількість людей.

Озеленення враховує сезонність роботи школи, тому підбір рослин забезпечує декоративність у різні пори року. На території висаджені червоні клени, ліквідамбар, берези, липи, магнолії, а також різноманітні декоративні кущі та злакові трави, які змінюють вигляд простору протягом року.

Створення природних насаджень відбувалося поетапно. Спочатку територію засіяли декоративними газонними травами, які зберігали естетичний вигляд упродовж трьох років. Після цього їх поступово замінили на стійкі багаторічні та злакові рослини, що потребують менше догляду, краще пристосовані до міських умов та створюють більш природний ландшафт.

/ Новопечерська школа
/ Новопечерська школа
/ Новопечерська школа
/ Новопечерська школа
Лави біля дитячого майданчика / Новопечерська школа
Лави біля дитячого майданчика / Новопечерська школа
Лави біля дитячого майданчика / Новопечерська школа
Лави біля дитячого майданчика / Новопечерська школа
Лави біля дитячого майданчика / Новопечерська школа
Лави біля дитячого майданчика / Новопечерська школа
Лави біля дитячого майданчика / Новопечерська школа
Лави біля дитячого майданчика / Новопечерська школа

Центральний дитячий майданчик для активних ігор

Центральний дитячий майданчик для активних ігор створений так, щоб заохочувати дітей до руху, досліджень і взаємодії. Простір не обмежений фіксованими сценаріями, а дозволяє вигадувати власні правила гри, розвиваючи уяву та фізичні навички.

Майданчик у задньому дворі обладнаний ігровими елементами від Kompan, які були вперше завезені в Україну спеціально для цього проєкту. Рельєфне гумове покриття, балансувальні конструкції та інтерактивні зони стимулюють фізичну активність, координацію рухів і експериментування з простором.

Ігрові елементи / Новопечерська школа
Ігрові елементи / Новопечерська школа
Ігрові елементи / Новопечерська школа
Ігрові елементи / Новопечерська школа
Ігрові елементи / Новопечерська школа
Ігрові елементи / Новопечерська школа
Гумові пагорби «Вулкан» / Новопечерська школа
Гумові пагорби  «Вулкан» / Новопечерська школа
Гумові пагорби  «Вулкан» / Новопечерська школа
Гумові пагорби  «Вулкан» / Новопечерська школа
Гумові пагорби  «Вулкан» / Новопечерська школа
Гумові пагорби  «Вулкан» / Новопечерська школа
Петанк / Новопечерська школа
Петанк / Новопечерська школа

Спортивна зона

До розробки спортивного простору активно долучався викладач фізкультури школи Василь Леськів. Саме він запропонував створити майданчик для гри в петанк і трамплін для стрибків.

Ми індивідуально розробили трамплін, оптимізували розташування трибун і продумали всі деталі стадіону. Окремо була спроєктована глядацька зона з лавами, що забезпечує комфорт для спостерігачів під час спортивних заходів. Біля майданчика розміщені правила гри в петанк, що заохочує дітей освоювати нові активності.

Спортивні елементи / Новопечерська школа
Спортивні елементи / Новопечерська школа
Спортивні елементи / Новопечерська школа
Спортивні елементи / Новопечерська школа
Стадіон / Новопечерська школа
Стадіон / Новопечерська школа
Стадіон / Новопечерська школа
Трибуни на 104 місця / Новопечерська школа
Трибуни на 104 місця / Новопечерська школа
Трибуни на 104 місця / Новопечерська школа
Трибуни на 104 місця / Новопечерська школа
Трибуни на 104 місця / Новопечерська школа
Баскетбольний майданчик / Новопечерська школа
Баскетбольний майданчик / Новопечерська школа
Баскетбольний майданчик / Новопечерська школа
Баскетбольний майданчик / Новопечерська школа
Рампа для лиж та сноубордів / Новопечерська школа
Рампа для лиж та сноубордів / Новопечерська школа
/ Новопечерська школа
Рампа для лиж та сноубордів / Новопечерська школа

Амфітеатр — зоряне небо

Спочатку на ділянці біля басейну планувалася парковка для вчителів. Однак віддавати цінний простір для авто, які простоюватимуть більшу частину дня, було нерозумно. Тому ми замінили паркінг на зелений амфітеатр, що став місцем для занять на свіжому повітрі, відпочинку та неформальних зустрічей учнів.

Концепцію амфітеатру шукали серед різних варіантів, розглядаючи водні елементи, фонтан та озеленення. У підсумку зупинилися на ідеї зоряного неба. На гумовому покритті нанесені сузір’я, які видно в нашій півкулі, кожне з них підписане. Вбудовані ліхтарики імітують зірки, а завдяки системі димерування вони мають різну яскравість. Це рішення дозволило дітям бачити зоряне небо навіть у межах міста, де світлове забруднення зазвичай приховує його.

Підземний паркінг розмістили за школою, а на його покрівлі облаштували зелену галявину для відпочинку та навчальних експериментів.

/ Новопечерська школа
/ Новопечерська школа
/ Новопечерська школа
/ Новопечерська школа
/ Новопечерська школа
/ Новопечерська школа
/ Новопечерська школа
/ Новопечерська школа
/ Новопечерська школа
Освітлення / Новопечерська школа
Освітлення / Новопечерська школа
Освітлення / Новопечерська школа
Освітлення / Новопечерська школа
Навігація / Новопечерська школа
Навігація / Новопечерська школа

Проєкт Новопечерської школи демонструє, як ландшафт може формувати навчальне середовище, де діти отримують свободу дослідження, гри та взаємодії. Завдяки ретельно продуманим рішенням територія стала не просто доповненням до архітектури, а важливою частиною шкільного життя. Тут немає жорстких сценаріїв – простір змінюється разом з учнями, залишаючись комфортним і природним місцем для навчання, відпочинку та розвитку.


/ Новопечерська школа
/ Новопечерська школа
/ Новопечерська школа
/ Новопечерська школа
/ Новопечерська школа
/ Новопечерська школа
/ Новопечерська школа
/ Новопечерська школа

Студія ландшафтної архітектури 'KOTSIUBA'

Максим Коцюба, Марія Андрієнко, Надія Бичек

Strategy + design — Other Land

Web development — Perevorot.com